Overview
MLS® Number: A2294333
Type: Detached
Bedrooms: 5
Bathrooms: 4.0
Living Area: 2,001 sq. ft.
Lot Size: 4,133 Square Feet
Year Built: 2009
Community: Coventry Hills
Description

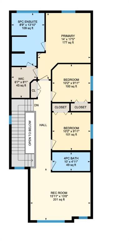
Where to even begin! So many features... Starting outside, you’ll love the impressive 29’ front driveway and the beautifully finished backyard featuring stamped concrete and a gas line for effortless BBQing. The yard offers plenty of space for kids to run and even the potential to add a garage or shed (with approval). The exterior has been extensively updated with a newer roof and flashing, replaced siding along the north side, plus new gutters and downspouts. Durable metal cladding at the front adds a modern touch while keeping maintenance simple—just posts and a beam to paint. Additional features like custom window well covers and a recently serviced A/C add to the home’s comfort and peace of mind. Step inside to a bright and inviting main floor, where a spacious living, dining, and kitchen area is anchored by a cozy gas fireplace and large windows. The pull-through pantry—with storage on both sides—is perfect for busy families, while the laundry and mudroom provide convenient access to the garage. The stunning open-to-above design creates an airy, welcoming feel as you head upstairs. Upstairs, you’ll find two generously sized kids’ bedrooms (Both with built in closet inserts), a bonus room at the front of the home perfect for play or relaxation, and an extra-long main bathroom with the option to add a second sink. The primary suite is tucked away at the back, offering a true retreat with a massive closet, double vanities, a soaker tub, and a large shower—plus plenty of room for a full king-sized bedroom set. The fully finished basement is designed for both comfort and functionality, featuring upgraded cozy carpet, spray foam insulation in the exterior walls, and added ceiling insulation for extra warmth and quiet. Down here, you’ll find a spacious rec room, a beautiful full bathroom with custom cabinetry and a shower niche, and two large bedrooms complete with wainscotting and custom closets. To top it all off, the garage is equipped with a newer door (replaced in 2021) and upgraded opener, rounding out this well-maintained and move-in ready home. You better come check it out today!

Seller Brokerage: CIR Realty

Property Details
Size & Rooms
Below Grade679 sq. ft.
Main Level860 sq. ft.
Upper Level1,141 sq. ft.
Rooms Above Grade7
Beds Above Grade3
Beds Below Grade2
Bathrooms
5-Piece Ensuite1
4-Piece2
2-Piece1
EnsuiteYes
Construction
Style2 Storey
Exterior MaterialStone,Wood Frame
RoofAsphalt Shingle
FoundationPoured Concrete
New ConstructionNo
Parking & Garage
Garage Stalls2
Total Parking4
FeaturesDouble Garage Attached
Basement
TypeFull
DevelopmentFinished
FeaturesNone
Interior
HeatingForced Air
CoolingCentral Air
Fireplaces1 — Gas
FlooringCarpet,Tile,Wood
LaundryLaundry Room,Main Level
FeaturesBreakfast Bar,Ceiling Fan(s),Closet Organizers,Kitchen Island,Open Floorplan,Pantry,Walk-In Closet(s)
AppliancesDishwasher,Refrigerator,Stove(s),Washer/Dryer
InclusionsOver the Range Microwave, Garage Door Opener & 2 Remotes, Shed, Vacuflo unit & Vacuflo attachments, AC Unit
Exterior & Lot
ExteriorStorage
FencingFenced
Patio / PorchDeck
Lot FeaturesBack Yard,Front Yard
Frontage29.99 ft.
CommunityPark,Playground,Pool,Schools Nearby,Shopping Nearby,Sidewalks,Street Lights,Tennis Court(s)
Financial & Legal
Annual Tax$4,276 (2025)
PossessionBy Date Specified,Negotiable
ZoningR-G
TitleFee Simple
Mortgage Calculator
Location
186 Covecreek Place NE, Coventry Hills, Calgary, AB
Get Directions
About Coventry Hills
AI-generated summary

Coventry Hills is a well-established family-oriented community in northeast Calgary known for its quiet residential streets and strong sense of neighbourhood pride.

Developed primarily in the 1980s-1990s
Home to Genesis Centre aquatic and fitness facility
Features multiple parks and green spaces including Coventry Hills Park
Housing

The area features predominantly single-family detached homes built in the 1980s and 1990s, with a mix of bungalows, two-storey homes, and some townhouses.

Transit

Transit options include several bus routes connecting to downtown and nearby stations, while the community offers good walkability within residential areas.

Amenities

Residents enjoy close proximity to Coventry Hills Centre shopping, multiple schools, parks, and the nearby Genesis Centre recreation facility.

Who Lives Here

The neighbourhood attracts established families and professionals seeking a mature community with good schools and recreational amenities.

This neighbourhood summary was generated by AI and is provided for general information only. Verify details with the City of Calgary and your REALTOR® before making decisions.

Contact Agent
Robb Leece, REALTOR®
Robb Leece, REALTOR®
Graham Realty Inc. 403-478-4335 robbleece@gmail.com
Call 403-478-4335
Unlock More Data

Sign up free to see sold prices, days on market, price history and set listing alerts.

Get Free Access
Search Listings

Similar Properties in Coventry Hills

199 Coventry Close NE
For Sale
Detached

$588,900

199 Coventry Close NE

Coventry Hills, Calgary

  • 4 Beds
  • 3.0 Baths
  • 1,157 sq. ft.
78 Coventry View NE
For Sale
Detached

$537,900

78 Coventry View NE

Coventry Hills, Calgary

  • 3 Beds
  • 2.0 Baths
  • 1,454 sq. ft.
166 Coverton Close
For Sale
Detached

$499,900

166 Coverton Close

Coventry Hills, Calgary

  • 3 Beds
  • 3.0 Baths
  • 1,351 sq. ft.
193 Covewood Green NE
For Sale
Detached

$599,000

193 Covewood Green NE

Coventry Hills, Calgary

  • 3 Beds
  • 3.0 Baths
  • 1,451 sq. ft.
218 Coville Circle NE
For Sale
Detached

$699,900

218 Coville Circle NE

Coventry Hills, Calgary

  • 4 Beds
  • 3.0 Baths
  • 1,614 sq. ft.
99 Covepark Square NE
For Sale
Semi Detached (Half Duplex)

$499,988

99 Covepark Square NE

Coventry Hills, Calgary

  • 4 Beds
  • 2.0 Baths
  • 1,295 sq. ft.