Overview
MLS® Number: A2286404
Type: Detached
Bedrooms: 4
Bathrooms: 3.0
Living Area: 1,070 sq. ft.
Lot Size: 3,003 Square Feet
Year Built: 1988
Community: Falconridge
Description

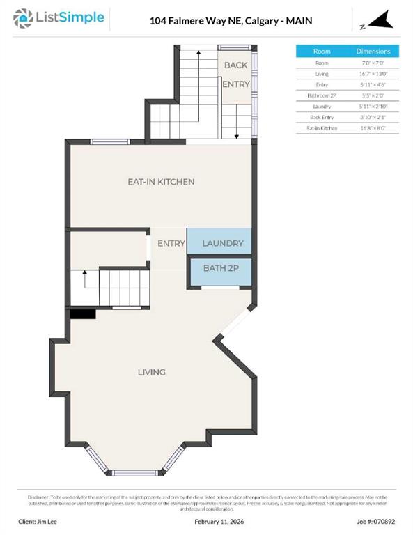
Welcome to this 3 bedroom, 2 storey detached home in Falconridge. This home features a great main floor plan with a bright living room complete with brick wood burning fireplace, 2 piece bathroom and there is also a kitchen and dining area with a glass sliding door to opens to the large backyard. Upstairs you will find a good sized master bedroom with 2 additional bedrooms and a 4 piece bathroom. Your lower level (with separate entrance) features an illegal suite complete with a kitchen, bedroom, 3 piece bathroom, separate laundry setup is a mortgage helper. Convenient on demand hot water tank and new furnace was recently replaced back in December 2025 with newer siding and roof shingles replaced back in 2021. Out back you have a single detached garage and plenty of yard space. This home is also ideally situated close to schools, walking distance to Co-op plaza and public transit is just a short walk away. Priced accordingly and great for a handy man. Call your favorite realtor to view today!

Seller Brokerage: Century 21 Bravo Realty

Property Details
Size & Rooms
Below Grade426 sq. ft.
Main Level518 sq. ft.
Upper Level552 sq. ft.
Rooms Above Grade5
Beds Above Grade3
Beds Below Grade1
Bathrooms
4-Piece1
3-Piece1
2-Piece1
EnsuiteNo
Construction
Style2 Storey
Exterior MaterialAluminum Siding ,Concrete,See Remarks
RoofAsphalt Shingle
FoundationPoured Concrete
New ConstructionNo
Parking & Garage
Garage Stalls1
Total Parking1
FeaturesOff Street,Single Garage Detached
Basement
TypeFull
DevelopmentFinished
FeaturesWalk Up
Interior
HeatingForced Air,Natural Gas
CoolingNone
Fireplaces1 — None
FlooringCarpet,Ceramic Tile,Laminate
LaundryLower Level,Main Level
FeaturesSee Remarks
AppliancesDishwasher,Dryer,Electric Stove,Range Hood,Refrigerator,Washer
InclusionsRefrigerator (basement), stove (basement), washer (basement), dryer (basement)
Exterior & Lot
ExteriorPrivate Yard
FencingFenced
Patio / PorchSee Remarks
Lot FeaturesBack Lane,Front Yard,Landscaped,See Remarks
Frontage9 ft.
CommunitySchools Nearby,Sidewalks,Street Lights
Financial & Legal
Annual Tax$2,859 (2025)
Possession30 Days / Neg
ZoningR-CG
TitleFee Simple
RestrictionsUtility Right Of Way
Mortgage Calculator
Location
104 Falmere Way NE, Falconridge, Calgary, AB
Get Directions
Contact Agent
Robb Leece, REALTOR®
Robb Leece, REALTOR®
Graham Realty Inc. 403-478-4335 robbleece@gmail.com
Call 403-478-4335
Unlock More Data

Sign up free to see sold prices, days on market, price history and set listing alerts.

Get Free Access
Search Listings

Similar Properties in Falconridge

200 Falworth Way NE
For Sale
Detached

$565,000

200 Falworth Way NE

Falconridge, Calgary

  • 4 Beds
  • 4.0 Baths
  • 1,168 sq. ft.
48 Falton Way NE
For Sale
Detached

$520,000

48 Falton Way NE

Falconridge, Calgary

  • 4 Beds
  • 3.0 Baths
  • 1,202 sq. ft.
48 Faldale Close NE
For Sale
Detached

$559,900

48 Faldale Close NE

Falconridge, Calgary

  • 5 Beds
  • 3.0 Baths
  • 1,045 sq. ft.
119 Falshire Terrace NE
For Sale
Row/Townhouse

$310,000

119 Falshire Terrace NE

Falconridge, Calgary

  • 3 Beds
  • 2.0 Baths
  • 1,096 sq. ft.
43 Falshire Close NE
For Sale
Detached

$499,000

43 Falshire Close NE

Falconridge, Calgary

  • 5 Beds
  • 2.0 Baths
  • 1,090 sq. ft.
46 Falshire Terrace NE
For Sale
Row/Townhouse

$349,999

46 Falshire Terrace NE

Falconridge, Calgary

  • 3 Beds
  • 3.0 Baths
  • 1,102 sq. ft.